TRILOCALE IN CLASSE A - ULTIMO PIANO - UNITA' E

275.000 €
vendita - Rif. IM-1050

Foto immobile/Planimetrie

Caratteristiche immobile

Camere: 2
Bagni: 2
Riscaldamento: Autonomo
Tipo Riscaldamento: A pavimento
Combustibile Riscald.: GPL
65 MQ
82 MQ comm.
Stato immobile: Nuovo
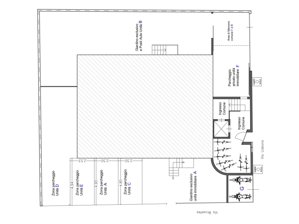
Posto auto: 1 posto
Classe ener.: A1
Locali: 3
Balcone: SI
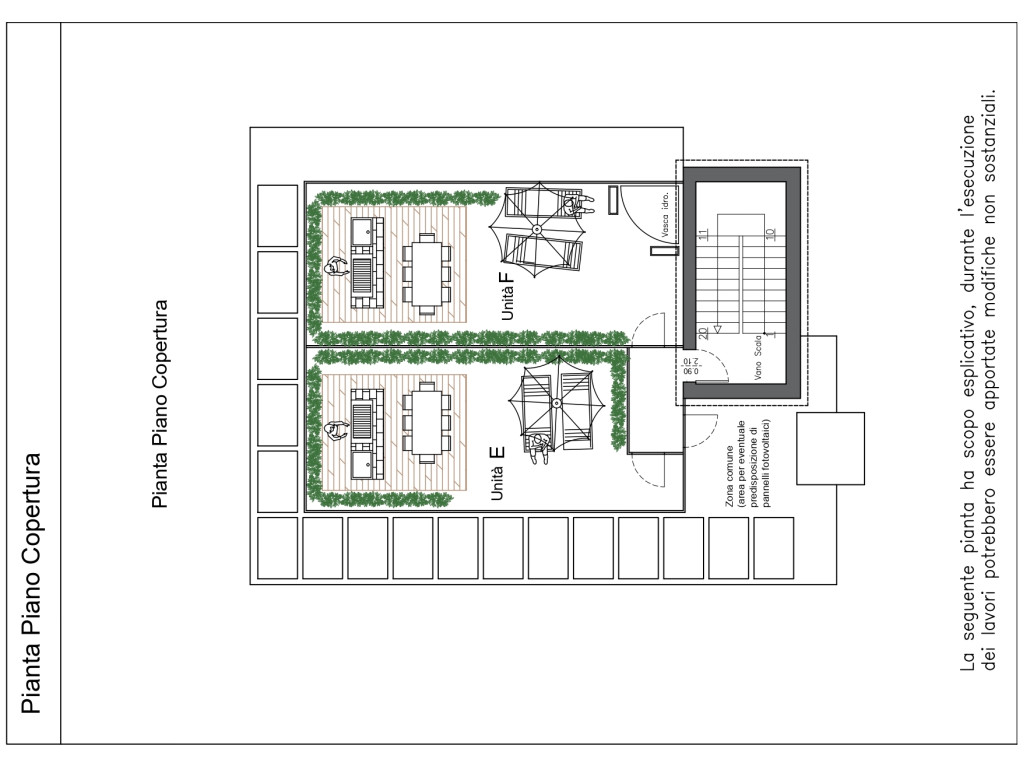
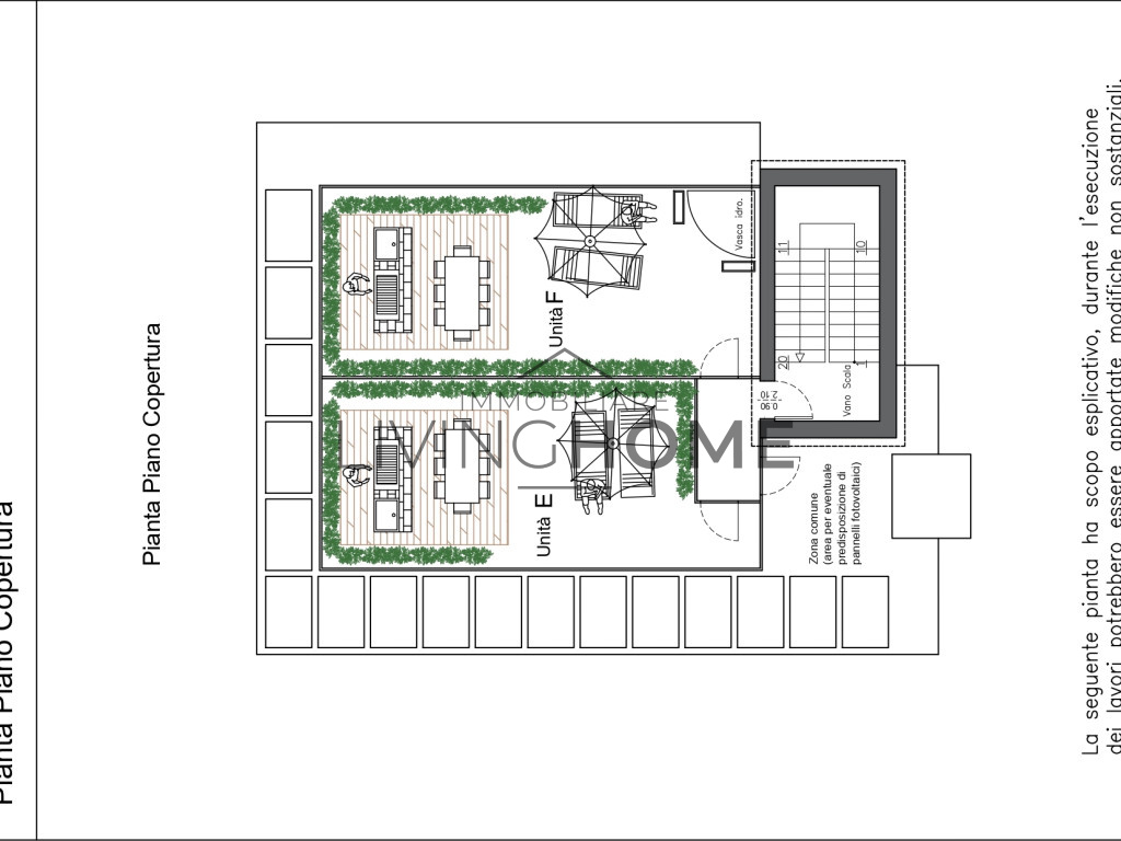
Terrazzo: SI
Cantina: SI
Ascensore: SI
Condizionatore: Predisposizione
Piano: Terzo
Totale piani: 3
Tot. unità presenti: 6
Anno costr.: 1960
Anno ristr.: 2025
Cucina: Angolo cottura
Spese condominiali: assenti
Esposizione: Est Sud
Porta Blindata
Cancello Elettrico
VideoCitofono
Fibra Ottica
Accesso disabili

Presentazione

RIMINI | MIRAMARE
Appartamento | 3 locali | 82 Mq comm.li

IMMOBILE:
Soggiorno Cucina open space - Camera da letto matrimoniale - Camera da letto singola - 2 Bagni

SERVIZI:
Balcone
Lastrico solare di 60 mq
Posto auto
Cantina di 12,4 mq

FABBRICATO:
In corso di ristrutturazione
Consegna a Gennaio 2026

NOTE:
Proponiamo in vendita un trilocale situato al TERZO ed ultimo piano, servito da ascensore, all’interno di una palazzina di sole 6 unità, collocata in una tranquilla zona residenziale di Miramare, ben collegata anche al lungomare.

L’intero fabbricato è attualmente oggetto di una ristrutturazione totale, mirata al miglioramento energetico.
Per quanto riguarda gli impianti verrà installato riscaldamento a pavimento alimentato da nuova caldaia a condensazione e predisposizione di split per il raffrescamento.

Consegna prevista: Gennaio 2026
Classe energetica A

Soluzione ideale sia come investimento che come prima o seconda casa al mare.

INFO:
Emanuele Iocca | +39 344 666 2544 | e.iocca@immobiliarelh.it
Gioele Barto | +39 342 674 5936 | g.barto@immobiliarelh.it
--------------------------------------------------------------------------------------------------------------------------------------------------------------------------------------------

Nota bene: Le informazioni riportate nel presente annuncio sono da intendersi indicative e non costituiscono elemento contrattuale.

Dove si trova?

Contatto e richiesta informazioni

Invia una richiesta all'agenzia

Agente di riferimento

Emanuele Iocca

IM-1050

Autorizzo il trattamento dei miei dati personali in base art. 13 del reg. eu 679/2016
[X]
Per ulteriori informazioni consulta la nostra Cookie Policy