BILOCALE CON AMPIO TERRAZZO COMPLETAMENTE RISTRUTTURATO

255.000 €
vendita - Rif. IM-1366

Foto immobile/Planimetrie

Caratteristiche immobile

Camere: 1
Bagni: 1
Riscaldamento: Autonomo
Tipo Riscaldamento: Pompa di calore
Combustibile Riscald.: Pompa di calore
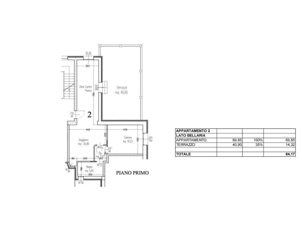
70 MQ
84 MQ comm.
Stato immobile: Ristrutturato
Posto auto: SI
Classe ener.: A3
Locali: 2
Balcone: SI
Terrazzo: SI
Condizionatore: SI
Piano: Primo
Totale piani: 2
Tot. unità presenti: 6
Anno costr.: 2025
Cucina: A vista
Spese condominiali: assenti
Esposizione: Nord Est Sud Ovest
Porta Blindata
Cancello Elettrico
VideoCitofono
Idromassaggio

Presentazione

RIMINI | VISERBA
Appartamento | 2 locali | 84 Mq comm.li

IMMOBILE:
Soggiorno Cucina open space - Camera da letto matrimoniale - Bagno

SERVIZI:
Terrazzo
Posto auto

FABBRICATO:
Ristrutturato nel 2025

NOTE:
Proponiamo in vendita un bilocale al PIANO PRIMO CON AMPIO TERRAZZO DI 40 MQ in una graziosa palazzina, situata in prima linea sul lungo mare di Viserba. La posizione sulla spiaggia e vicina anche ai principali servizi.

L’intero fabbricato è stato completa riqualificato dove è stata rifatta sia le facciata esterna sia tutti gli appartamenti interni migliorando significativamente il risparmio energetico e il comfort abitativo, con l’adozione delle più moderne soluzioni:
- Isolamento termico delle strutture portanti
- Nuovi infissi in PVC ad alte prestazioni
- Pompa di calore indipendente per ogni appartamento, con sistema di riscaldamento e raffrescamento tramite split forniti dalla ditta
- Impianti elettrici e idraulici completamente nuovi
- Ridistribuzione degli spazi interni per una migliore funzionalità
- Finiture moderne, come pavimenti e rivestimenti in ceramica di design

Un progetto che unisce estetica, efficienza e sicurezza, garantendo appartamenti moderni e pronti a soddisfare ogni esigenza.

Soluzione ideale sia come investimento che come prima o seconda casa al mare.

Info:
Giorgia Galassi | +39 334 826 7835 | g.galassi@immobiliarelh.it
Gioele Barto | +39 342 674 5936 | g.barto@immobiliarelh.it

-------------------------------------------------------------------------------------------------------------------------------------------------------------------------------------------

Nota bene: Le informazioni riportate nel presente annuncio sono da intendersi indicative e non costituiscono elemento contrattuale.

Dove si trova?

Contatto e richiesta informazioni

Invia una richiesta all'agenzia

Agente di riferimento

Giorgia Galassi

IM-1366

Autorizzo il trattamento dei miei dati personali in base art. 13 del reg. eu 679/2016
[X]
Per ulteriori informazioni consulta la nostra Cookie Policy