VILLETTA CENTRALE UN CLASSE A4 CON GIARDINO
Foto immobile/Planimetrie
Caratteristiche immobile
Camere: 3
Bagni: 2
Riscaldamento: Autonomo
Tipo Riscaldamento: A pavimento
Combustibile Riscald.: Pompa di calore
110 MQ
145 MQ comm.
Stato immobile: Nuovo
Giardino: Privato
Giardino MQ: 100
Posto auto: SI
Garage: SI
Classe ener.: A4
Locali: 4
Balcone: SI
Condizionatore: SI
Piano: (NON USARE)Su più livelli
Su più livelli
Totale piani: 3
Tot. unità presenti: 1
Anno costr.: 225
Cucina: Angolo cottura
Spese condominiali: assenti
Esposizione:
Est Sud Ovest
Porta Blindata
Allarme
Cancello Elettrico
VideoCitofono
Fibra Ottica
Presentazione
CESENA | CASE FINALI
Villa centrale | 4 Locali | 145 Mq comm.li
COMPOSIZIONE IMMOBILE:
Soggiorno - Angolo cottura - 3 Camere da letto - 2 bagni - garage doppio - cantina - terrazzo - giardino privato
ACCESSORI:
garage doppio
giardino privato
terrazzo
2 logge
2 balconi
FABBRICATO:
Costruzione del 2025
NOTE:
In zona residenziale e ben servita, nel quartiere di Case Finali, proponiamo in vendita villetta centrale di nuova costruzione in classe energetica A4. Opportunità perfetta per chi desidera una soluzione moderna, indipendente e con un'elevata efficienza energetica.
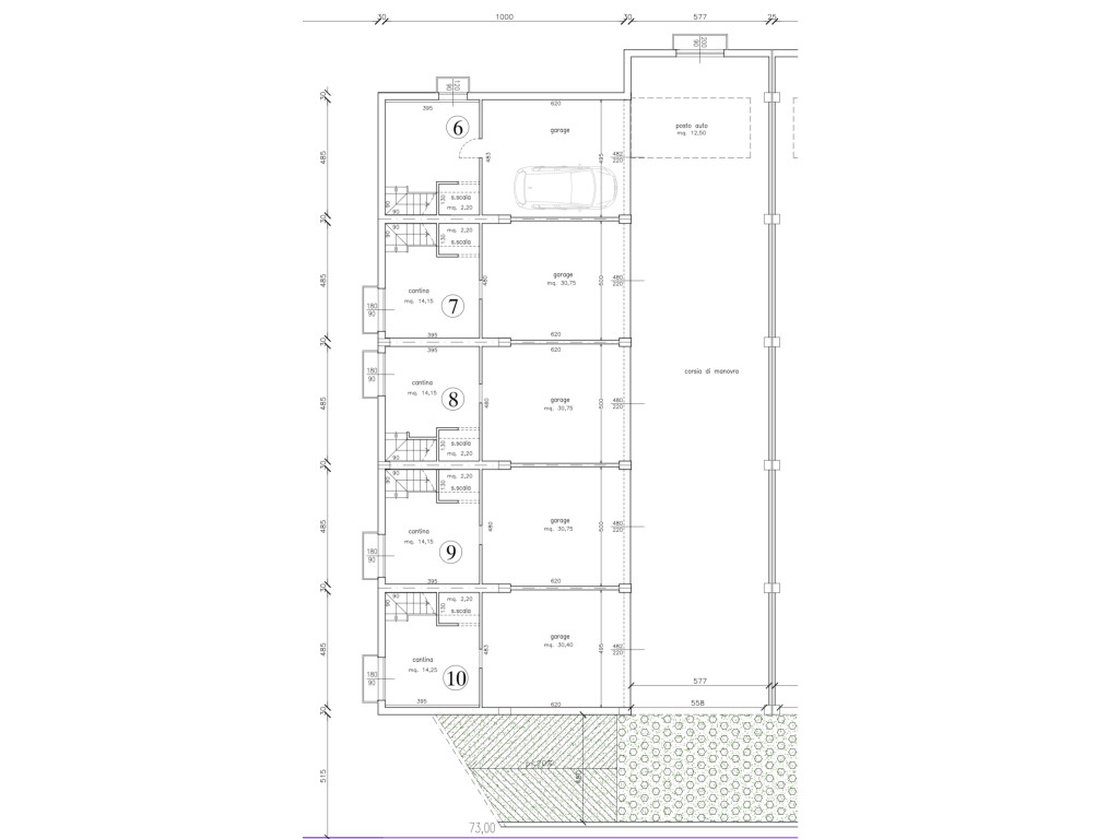
La proprietà si sviluppa su tre livelli e si presenta così composta: Piano Terra: ingresso su luminosa zona giorno open space con loggia, terrazzo di 25 mq, disimpegno e bagno; Piano Primo: tre camere da letto, disimpegno, bagno, due balconi; Piano Interrato: garage doppio di oltre 30 mq e cantina di 15 mq.
Completa la soluzione giardino privato.
Questa villetta è stata progettata secondo i più recenti standard costruttivi per garantire massimo risparmio energetico: impianto fotovoltaico da 3 kw, riscaldamento e raffrescamento a pavimento, pompa di calore, isolamento termico ed acustico con infissi in triplo vetro.
Possibilità di personalizzazione delle finiture interne!
CONSEGNA: Gennaio 2026
Contattaci per maggiori informazioni e prenotare una visita!
Info:
Matteo Boschetti | +39 3927892961 | m.boschetti@immobiliarelh.it
Alice Moretti l +39 3519278505 l a.moretti@immobiliarelh.it
------------------------------------------------------------------------------------------------------------------------------------------------
Nota bene: Le informazioni riportate nel presente annuncio sono da intendersi indicative e non costituiscono elemento contrattuale.
Villa centrale | 4 Locali | 145 Mq comm.li
COMPOSIZIONE IMMOBILE:
Soggiorno - Angolo cottura - 3 Camere da letto - 2 bagni - garage doppio - cantina - terrazzo - giardino privato
ACCESSORI:
garage doppio
giardino privato
terrazzo
2 logge
2 balconi
FABBRICATO:
Costruzione del 2025
NOTE:
In zona residenziale e ben servita, nel quartiere di Case Finali, proponiamo in vendita villetta centrale di nuova costruzione in classe energetica A4. Opportunità perfetta per chi desidera una soluzione moderna, indipendente e con un'elevata efficienza energetica.
La proprietà si sviluppa su tre livelli e si presenta così composta: Piano Terra: ingresso su luminosa zona giorno open space con loggia, terrazzo di 25 mq, disimpegno e bagno; Piano Primo: tre camere da letto, disimpegno, bagno, due balconi; Piano Interrato: garage doppio di oltre 30 mq e cantina di 15 mq.
Completa la soluzione giardino privato.
Questa villetta è stata progettata secondo i più recenti standard costruttivi per garantire massimo risparmio energetico: impianto fotovoltaico da 3 kw, riscaldamento e raffrescamento a pavimento, pompa di calore, isolamento termico ed acustico con infissi in triplo vetro.
Possibilità di personalizzazione delle finiture interne!
CONSEGNA: Gennaio 2026
Contattaci per maggiori informazioni e prenotare una visita!
Info:
Matteo Boschetti | +39 3927892961 | m.boschetti@immobiliarelh.it
Alice Moretti l +39 3519278505 l a.moretti@immobiliarelh.it
------------------------------------------------------------------------------------------------------------------------------------------------
Nota bene: Le informazioni riportate nel presente annuncio sono da intendersi indicative e non costituiscono elemento contrattuale.
Dove si trova?
Contatto e richiesta informazioni
Invia una richiesta all'agenzia
Agente di riferimento
Alice Moretti
IM-1174
Autorizzo il trattamento dei miei dati personali in base art. 13 del reg. eu 679/2016